Page suivante
Page précédente
Vailhauquès (34570)

Villa 4 pièce(s) 3 chambre(s) 87.64 m²

1
250 m²
3
269 000 €
Réf NEVMA1470009505

BRS – VILLA – VAILHAUQUÈS – JARDIN – CALME – FAMILLE – LUMINOSITÉ – OPPORTUNITÉ – PROPRIÉTÉ – TERRAIN

Découvrez cette villa mitoyenne de 88 m² située à Vailhauquès, au cœur d’un environnement résidentiel particulièrement calme et recherché. Éligible au Bail Réel Solidaire, elle représente une occasion unique d’accéder à la propriété dans des conditions financières avantageuses, tout en bénéficiant d’un cadre de vie privilégié.

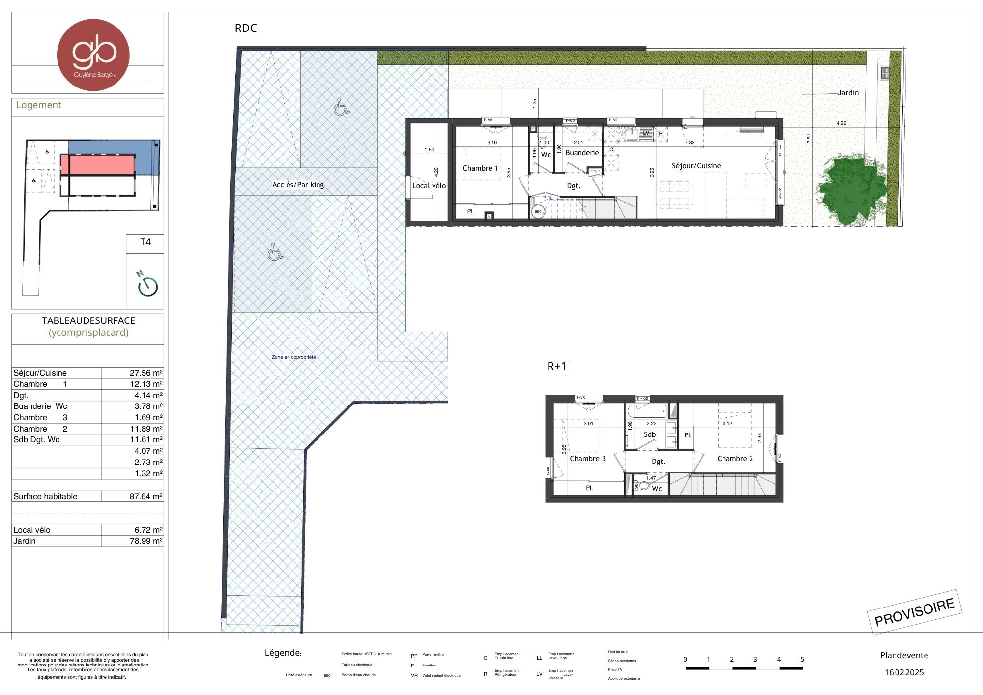
Implantée sur un terrain de 250 m², la maison offre une organisation intérieure pensée pour le confort quotidien. Le séjour-cuisine de 27,56 m², baigné de lumière grâce à une large baie vitrée, s’ouvre directement sur un jardin privatif d’environ 80 m² : un véritable prolongement de l’espace de vie, idéal pour profiter du plein air, jardiner ou recevoir.

Le rez-de-chaussée accueille une chambre parentale de 12,13 m², parfaite pour une vie de plain-pied, ainsi qu’une buanderie attenante à la cuisine, un WC indépendant et un local à vélo de 7 m², très pratique pour le rangement.
À l’étage, deux chambres d’environ 11 m² chacune, une salle de bain et un second WC indépendant composent un espace nuit fonctionnel et agréable.

Cette villa combine confort, luminosité et accessibilité, tout en offrant un extérieur rare dans ce secteur prisé.

Son prix de 269 000 euros, Pour plus d’information n’hésitez pas à nous contacter.

Il est possible de cumuler, pour l’acquisition de sa résidence principale, les avantages de la TVA Réduite et du Prêt à Taux Zéro + 2020 (si les conditions sont respectées pour chacun de ces Avantages).


Les plus du bien

- Éligible au Bail Réel Solidaire

- Jardin privatif d’environ 80 m²

- Chambre parentale au rez-de-chaussée

- Local à vélo de 7 m²

- Environnement très calme

- Belle luminosité grâce à la grande baie vitrée

- Maison récente et fonctionnelle

Vailhauquès est un village dynamique et verdoyant, situé à seulement quelques minutes de Montpellier. Vous y trouverez écoles, commerces, associations sportives et culturelles, ainsi qu’un cadre naturel exceptionnel entre collines, garrigue et espaces boisés.

Les accès sont simples et rapides :

- En voiture : Montpellier à moins de 20 minutes, A750 à proximité, accès facile vers Juvignac, Saint-Georges-d’Orques et Montarnaud.

- Transports : lignes de bus régulières vers Montpellier et les communes voisines, réseau Hérault Transport.

Un emplacement idéal pour concilier tranquillité, vie familiale et proximité des grands pôles d’activité.

Pour en savoir plus et organiser une visite, contactez dès maintenant Jean-Pascal Graille au 06.95.52.27.50 ou Jean-Pierre Demolliere au 07.68.94.82.10.
Ils se feront un plaisir de répondre à toutes vos questions et de vous faire découvrir ce petit coin de paradis.


RSAC 941695579, RSAC 929004448.
Votre agence immobilière GUYLÈNE BERGÉ.
Les informations sur les risques auxquels ce bien est exposé sont disponibles sur le site Géorisques : www.georisques.gouv.fr.

vailhauquès – montpellier – juvignac – saint-georges-d’orques – murviel-lès-montpellier – montarnaud – grabels – combaillaux – bail réel solidaire – maison à vendre vailhauquès


Bilan énergétique

Diagnostics énergetiques
A propos de ce bien Caractéristiques de ce bien
  • Surface 87,64 m²
  • terrain 250 m²
  • séjour 27,56 m²
  • 3 chambre(s)
  • 1 salle(s) de bain
  • cuisine
  • 3 parking(s)
  • exposition Sud-Est
  • 1 côté(s) mitoyen(s)
  • 1 niveau(x)
  • vue dégagée
  • arboré
  • interphone

Composition

Composition de ce bien

Rez-de-chaussée

  • séjour cuisine 27.58 m²
  • chambre 1 12.13 m²
  • dégagement 4.14 m²
  • buanderie 3.78 m²
  • WC 1.69 m²
  • chambre 3 11.89 m²
  • chambre 2 + placard 11.61 m²
  • salle de bain 4.07 m²
  • dégagement 2.73 m²
  • WC 1.32 m²
  • local à vélo 6.72 m²
  • jardin 78.99 m²

Financier

Informations financières
Prix de vente 269 000 € Les honoraires d'agence seront intégralement à la charge du vendeur
Dépôt de garantie TTC 13 450 €

Simulation

Calcul des mensualités
* Champs obligatoires
Expert Neuf Négociateur