Page suivante
Page précédente
Paris (75014)

Appartement 2 pièce(s) 1 chambre(s) 30.33 m²

318 000 €
Réf RAVAP930009216

Découvrez en exclusivité ce charmant appartement 2 pièces de 30 m², véritable havre de paix niché au cœur du 14e arrondissement.

Alliant calme et vie de quartier dynamique, ce bien parfaitement optimisé saura séduire les citadins en quête de sérénité.
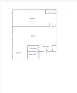
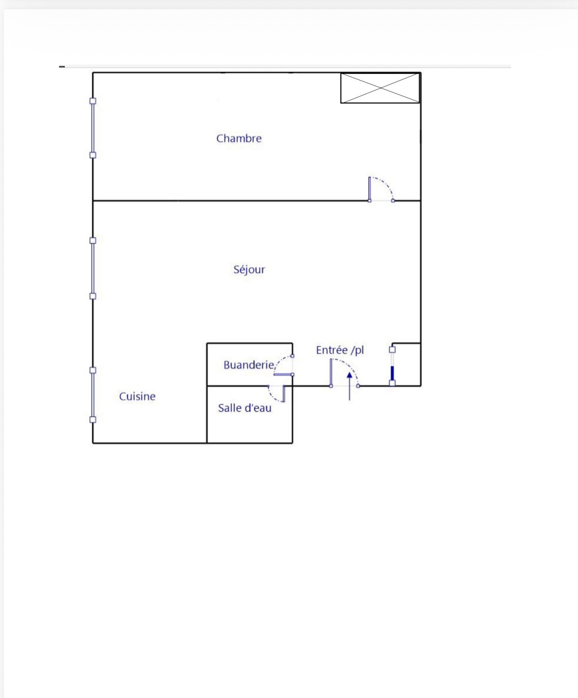
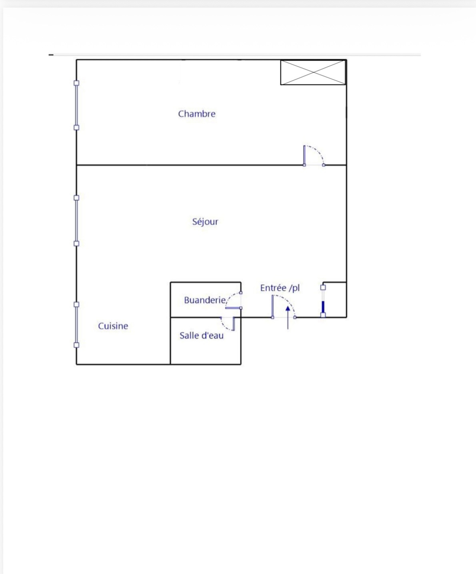
Situé au 2ème étage d'un immeuble ancien bien entretenu (sans ascenseur), cet appartement de 30 m² Carrez se distingue par son plan sans aucune perte de place. Il se compose d'une pièce de vie agréable, d'une cuisine semi ouverte et d'une belle chambre spacieuse équipée d'un grand placard de rangement intégré, une salle d’eau avec WC et une cave complète ce bien.

Le point fort majeur de cet appartement est son calme, situé dans une rue très peu passante alors que l'agitation parisienne est à deux pas. L'espace a été pensé pour maximiser chaque mètre carré, offrant une sensation de volume supérieure à sa surface réelle. C'est une opportunité idéale pour une première acquisition, un investissement locatif à forte rentabilité ou un pied-à-terre sécurisant en plein Paris.

L'emplacement est stratégique : au cœur du quartier Plaisance, vous profitez de l'ambiance village de la rue Pernety, avec ses commerces de bouche, ses supermarchés et ses terrasses conviviales.
Vivre dans le 14ème, c'est choisir l'un des arrondissements les plus prisés de la rive gauche, mêlant culture, espaces verts et dynamisme économique, à proximité de la Gare Montparnasse.

La mobilité est totale : le métro Plaisance (Ligne 13) se trouve à seulement 2 minutes à pied. Plusieurs lignes de bus et stations de vélos en libre-service complètent une desserte parfaite pour rejoindre le centre de Paris ou les pôles d'activités en quelques minutes.

DPE : Classe D / GES : Classe D
Copropriété : Pas de procédure en cours. Ravalement voté et payé, charges annuelles : 1400 €.Taxe foncière : 391€Risques : Les informations sur les risques auxquels ce bien est exposé sont disponibles sur le site Géorisques: www.georisques.gouv.fr

Idéal investisseur, premier achat, résidence secondaire, appartement calme Paris 14, proximité transports, bien optimisé, commerces


Cette opportunité au calme ne restera pas longtemps sur le marché. Pour toute information complémentaire ou pour organiser une visite, contactez dès maintenant Alicia ROMERO au O6 O3 89 O6 O7 (EI) RSAC 978 534 516, à votre écoute 7jours/7.


Les informations sur les risques auxquels ce bien est exposé sont disponibles sur le site Géorisques

Bilan énergétique

Diagnostics énergetiques
A propos de ce bien Caractéristiques de ce bien
  • Surface 30,33 m²
  • carrez 30,52 m²
  • 1 chambre(s)
  • construit en 1963
  • Chauffage individuel : chaudière (gaz)
  • 2ème étage
  • 5 étage(s)
  • cave

Info copro

Copropriété
  • Copropriété Oui
  • Lot n° 12
  • Nombre de lots 63
  • Quote part annuelle des charges 1 400 €
  • Plan de sauvegarde Non

Financier

Informations financières
Prix de vente 318 000 € Les honoraires d'agence seront intégralement à la charge du vendeur
Charges 116 €
Taxe foncière annuelle 397 €

Simulation

Calcul des mensualités
* Champs obligatoires
Alicia ROMERO Négociatrice