Page suivante
Page précédente
Montpellier (34070)

Maison 4 pièce(s) 2 chambre(s) 100 m²

Réf 3427219480
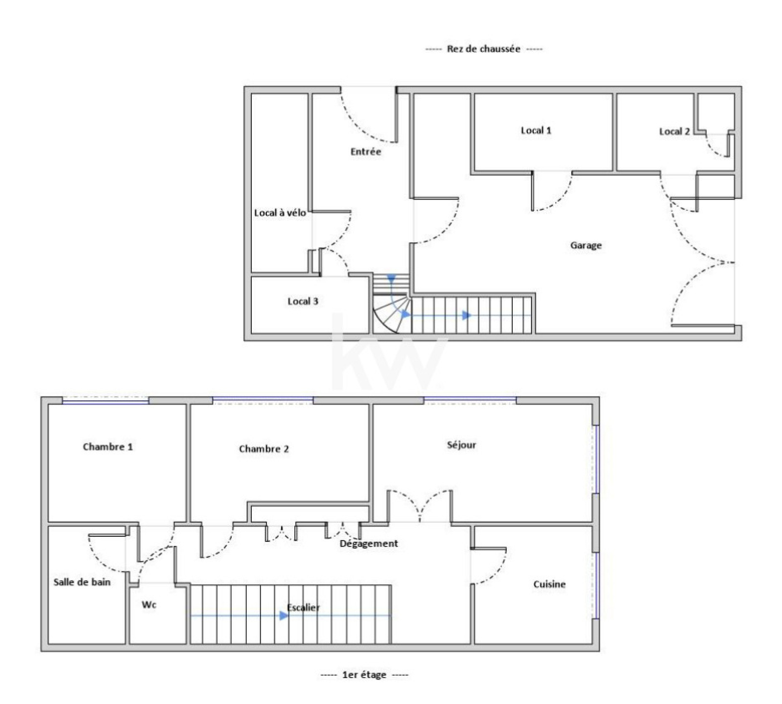
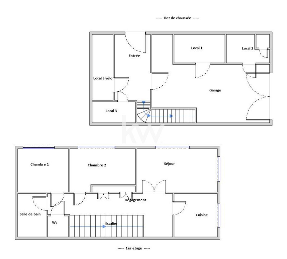
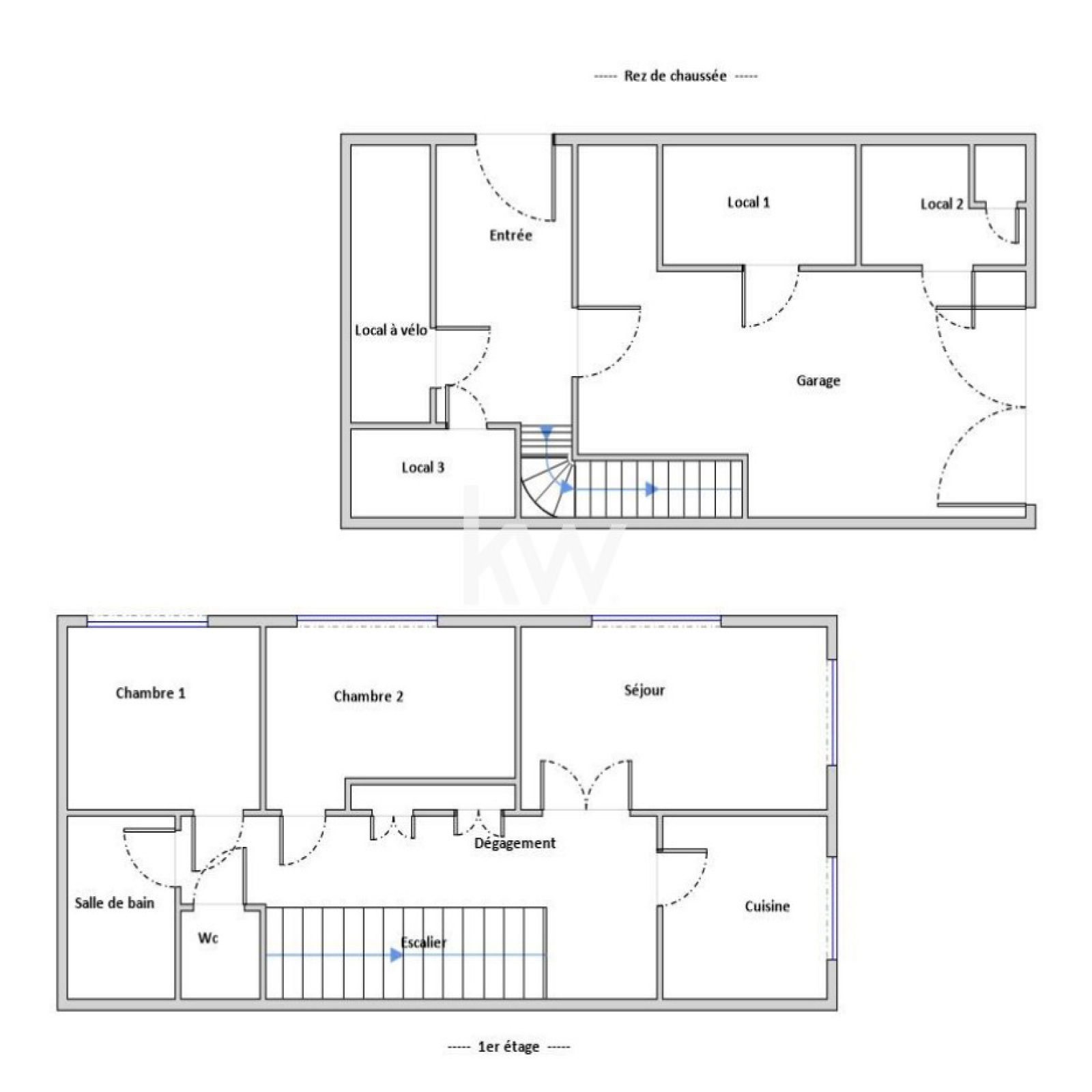
MAISON VIGNERONNE - 3 PIECES - GRAND GARAGE - MONTPELLIER CENTRE - FIGUEROLLES - TRAM KELLER WILLIAMS GUYLENE BERGE vous présente cette maison vigneronne d environ 100 m2, située quartier Figuerolles, dans une petite rue au calme. Au Rdc, un immense garage, une buanderie et un local à vélo. A l' étage la cuisine donne sur la pièce de vie, baignée de lumière. 2 belles chambres, une salle de bain, des WC séparés et de nombreux rangements complètent ce bien. Rafraichissement à prévoir, énorme potentiel ! Tram Ligne 3 Arceaux ou Plan Cabannes - 5mn. Envie d'en savoir plus : KELLER WILLIAMS GUYLENE BERGE - Contactez Jérôme BONET au O6 50 78 85 61 ou 04.30.78.17.71 - RSAC : 419319868 (EI) MAISON DE VILLE - MAISON VIGNERONNE - MONTPELLIER CENTRE - GARAGE - 3 PIECES - TRAM Les informations sur les risques auxquels ce bien est exposé sont disponibles sur le site Géorisques du gouvernement.

Bilan énergétique

Diagnostics énergetiques
A propos de ce bien Caractéristiques de ce bien
  • Surface 100 m²
  • 2 chambre(s)
  • Chauffage collectif : autre (autre)
  • vue NULL

Simulation

Calcul des mensualités
* Champs obligatoires
GB I Guylène Bergé Immobilier Agence